Property Description
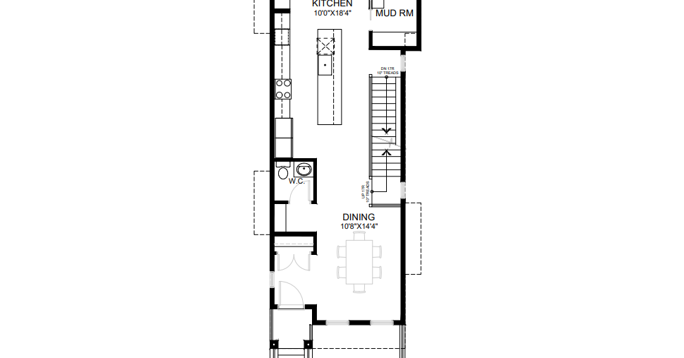
Welcome to this impeccably designed three-storey home, where timeless elegance meets modern comfort in every detail. Step into the open floor plan of the main level, where the dining area, kitchen, and living room seamlessly blend together, creating an inviting space for gatherings and relaxation.
Ascend to the second floor, where luxury awaits in the form of two generously sized bedrooms, each boasting its own ensuite bathroom and walk-in closet. Here, comfort and convenience merge effortlessly, offering the perfect retreat for rest and rejuvenation.
Venture to the third floor and discover a loft space that opens onto a charming terrace at the front of the house. This elevated oasis provides the ideal setting for enjoying picturesque views and tranquil moments of reflection. Adjacent, another bedroom and bathroom offer additional accommodations, completing this top-level sanctuary.
Descending to the lower floor, indulge in the spaciousness and versatility of the layout. A family room provides ample space for entertainment and relaxation, while a stylish bar area invites gatherings with friends and family. An office provides a serene workspace, while an additional bedroom and bathroom offer flexibility and convenience.
Situated on a sloped lot, this home takes full advantage of the natural landscape, offering a private lower floor terrace that enhances outdoor living and embraces the beauty of the surroundings. With its classic design and thoughtful layout, this home is a true embodiment of refined living, offering comfort, style, and tranquility in equal measure. Welcome home to luxury living at its finest.
Contact Agent
City Infills
403-618-2091
Property Details
Property Type
SINGLE FAMILY
Bedrooms
4
Bathrooms
4.5
Size
3852 sq.ft.
Floors
3
Year Built
2024
Property Location
4013 17 Street Southwest, Calgary, AB, Canada




